成都帥哥買下57㎡老破小,改造後鄰居都驚呆了:我怎麼沒想到?

來源: 更新:

本期文章分享的是一套小戶型的改造案例。

對於小戶型、頂樓且結構奇葩的房子,大多數人都避而不及,但是成都卻有一位帥哥,對這套面積爲57㎡“手槍”戶型一見鍾情,他覺得頂層帶閣樓,增加使用面積,也相信通過個性化的改造,能夠爲自己打造出一個與衆不同的家。

這位帥哥不僅是健身愛好者,而且審美極高,他將改造的重點放在細節優化上,採用現代簡約風格,以黑白爲主調,通過不起眼的裝飾,營造出空間的層次感,讓原本人人嫌棄的頂層老破小實現了逆襲。

入住後,他在社交平臺分享後,得到了無數網友的點贊,鄰居來訪都驚呆了,就連原屋主也表示:我怎麼沒想到?早知道不賣了!

話不多說,跟@本設家居一起去參觀下小哥的新家吧!

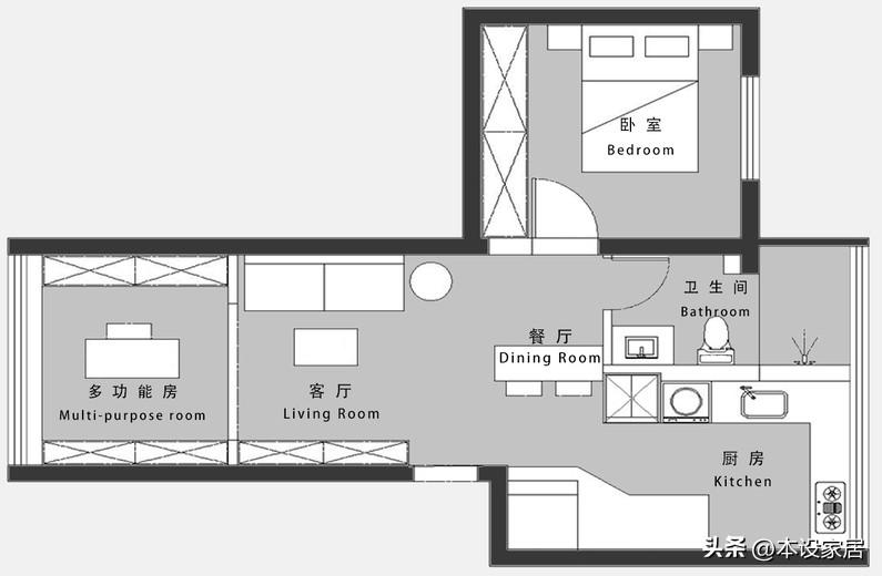
平面佈置圖

房子是一居室的戶型,由於結構存在不合理,比如:入戶門對着臥室、衛生間動線不順暢。

小哥堅持以人爲本,不需要獨立餐廳和電視機,優化後的平面佈局,不僅多了一間多功能房,臥室也有衣櫃的位置,並且充分利用北陽臺,讓廚房和衛生間更寬敞,使用起來也方便。

客廳

客廳地面鋪設深色大理石紋理的瓷磚,牆面刷大地色藝術漆,天花無吊頂,一道長虹水紋玻璃移門,將室外的喧囂阻擋在外,讓暗調的客廳更加靜謐。

小哥擯棄了電視機和背景牆,而是在入戶門的右側,定製一組到頂的印花儲物櫃,下部用來收納鞋靴,解決了沒有獨立玄關進出門儲物的需求,上半部分錯落設計的分格,則可以放置展示品,搭配可移動的茶几,讓空間更寬敞。

鐵藝的藤編沙發,搭配象徵着“掙脫束縛,奔向自由”的穿牆人偶,整個空間顯得個性、低調有內涵。

餐廳

考慮到獨居的屬性,小哥又以輕食爲主,所以不需要佔地太大的餐廳,只要靠近廚房處佈置一組小圓桌和高腳凳,就能滿足的進餐需求。

黑色的餐桌椅,與藝術漆和仿大理石瓷磚搭配得相得益彰,在暖光燈的烘托下,營造出一個時尚又高級的氛圍。

廚房

半開放式的廚房,採光非常好,小哥定製L型的黑白櫥櫃,不僅空間得到極致利用,看起來也簡約且立體感十足。

冰箱擺放在入口處,符合拿-洗-切-炒的生活動線,地櫃中還嵌入了洗烘一體機,解決了晾曬問題。

臥室

通往臥室的門做無框設計,與牆面牆面融爲一體,乾淨整潔。

臥室延續了客餐廳的硬裝美學,以灰色爲主基調,局部黑色點綴。

背景牆的裝飾畫、帶有燈帶的置物架、投影儀和空調,錯落有致,兩側牀頭燈柔和的光暈,輕輕托起夜晚幽微的情緒,撫平了白日所有積攢的喧囂。

空閒之餘,躺在柔軟的牀上,打開牀頭上方的投影儀,拉上白色紗簾+藍色遮光簾,讓白天也能享受愜意的觀影體驗。

多功能室

借用客廳的部分面積,原有的陽臺面積達到6㎡,讓原本的小戶型從1房到2房,靠牆還定製了與牆面藝術漆同色系的儲物櫃,除了收納日常生活用品外,還配備了隱形牀,親朋好友來訪,就是一間臨時臥室,太實用了。

電動夢幻簾可以調整房間的光線,在地面和傢俱上留下唯美的光影,治癒極了!

矮櫃上的“孫悟空”創意擺件,呈現出一種“歷盡千辛萬苦終成正果”的進取精神,趣味性十足。

衛生間

利用原有陽臺的部分面積打造淋浴房,實現簡單的乾溼分區,白色的壁掛式馬桶和洗漱臺,在灰色大理石肌理牆地磚的映襯下,讓空間顯大,又簡約精緻。

從這個小戶型案例可以看出,小哥審美,以及對待生活的樂觀態度,希望也能打動屏幕前的你,本案就分享到這裏了,感謝您的閱讀,下期見!

相關推薦
請使用下列任何一種瀏覽器瀏覽以達至最佳的用戶體驗:Google Chrome、Mozilla Firefox、Microsoft Edge 或 Safari。為避免使用網頁時發生問題,請確保你的網頁瀏覽器已更新至最新版本。
Scroll to Top