發現浙江一戶人家的裝修:118㎡,那叫一個高級,精緻耐看,曬曬

來源: 更新:

本期給大家分享的家居案例,屋主是浙江一對80後高知夫婦和他們可愛的孩子,他們喜好現代輕奢的風格,材質上選用奢華的大理石、實木與黃銅等,結合大地色調的軟裝,在暖光燈的烘托下,那叫一個高級,全屋精緻又耐看,忍不住分享給大家瞧瞧。

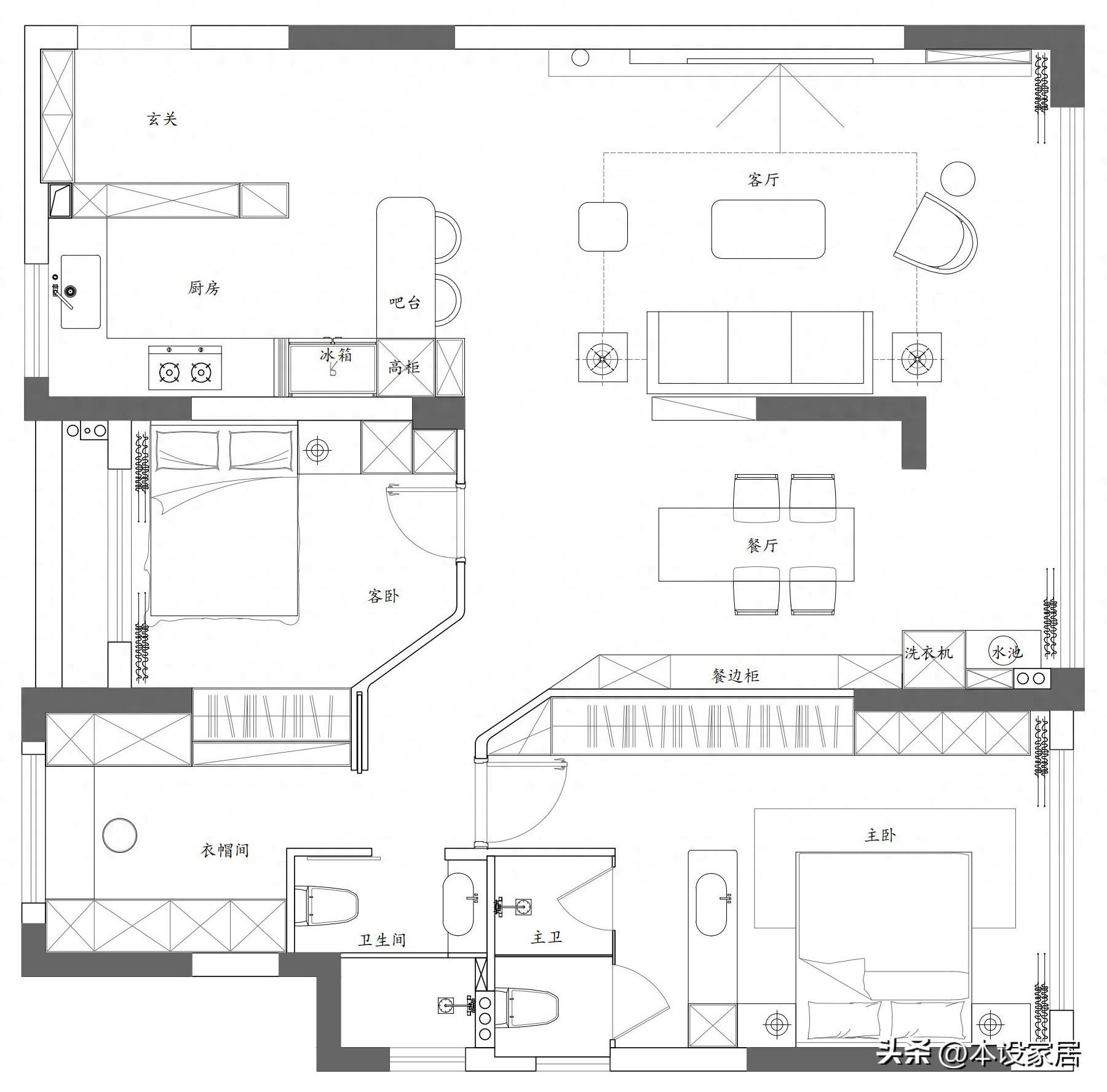
平面佈置圖

這套房子使用面積約118㎡大平層,戶型方正,南北朝向。

在平面佈局優化上,拆除廚房與玄關的隔牆,與客廳相鄰的次臥改餐廳,四室改三室,完工後門廳、餐廚、客廳、陽臺,在視覺上進行串聯、功能互通,並擁有了獨立的衣帽間,主衛與幹區既能保證了空間的充分利用,又可以讓家人間產生最直接的互動。

玄關

打開入戶門,結合廚房設計了一組L型的儲物櫃,也改變原始的封閉感受,實木+藤編+弧形元素的組合,目之所及,皆是溫馨、優雅與質感。

廚房

往裏是原餐廳改小吧檯,靠牆定製到頂的餐邊櫃,功能強大,集展示、收納和裝飾於一體,而且靠近廚房,在這裏喫個早餐,意興正酣時也可以小酌一杯,夫婦倆漫數生活裏的細碎日常,真的格調滿滿。

廚房和玄關之間局部使用水紋玻璃做隔斷,不僅能增加採光,更爲兩個空間創造出互動的可能性。

L型的櫥櫃現代簡約,上方空間做有開有合的吊櫃設計,存放各種廚具或不常用的物品,而地櫃則收納鍋碗瓢盆或五穀雜糧,拿取方便,大大提升生活效率。

客廳

客廳擁有寬大的落地玻璃窗,採光充足,最絕的的電動夢幻簾,不僅可以一鍵開和關,還能360°旋轉,控制空間明暗,真高級。

地面滿鋪實木板,乳白色的電視牆,將收納櫃和電視機融合的天衣無縫,再加上黑色皮質沙發的點綴,營造出暖咖色的主基調,賦予空間大開大合的碰撞與活力。

餐廳

餐廳與客廳的局部非承重牆拆除,通過簡潔利落的線條,以及木飾面+牆紙作爲背景牆主材,打造出空間的平整感和舒適感,復古的軟裝,搭配暖暖的燈光,視覺迅速升溫,充滿慵懶、溫馨的生活氣息。

陽臺安裝洗烘機,整體感強,整潔又高級。

主臥

主臥延續了客餐廳的格調,米白色牆面與黑胡桃木色傢俱的搭配,窗簾也是溫柔的咖色系,讓人完全地放鬆,也顯得典雅又舒適。

主衛洗漱臺外置,實現乾溼分離,高顏值的橢圓化妝鏡、大理石臺面、精緻的黃銅龍頭,太高級了。

北面的小臥室改造成衣帽間,靠牆定製兩排衣櫃,滿足夫婦倆衣物的收納需求,而乳白色的櫃門,也減少小空間的逼仄感。

次臥

小孩房的面積約10㎡,裝修也比較簡單,無吊頂的天花以線條裝飾,簡約又不失設計感。

衣櫃和牆選用米白色,實木儲物櫃與空調進出風口相連,也貼心做了折邊處理,讓整個空間氛圍都沉靜下來。

衛生間

改造後的主衛和次衛,用雙層玻璃屏風做了隔斷,黑色鐵藝不規則外觀精巧,保護隱私,而不同圖案花磚的採用,也不乏觀賞性。

看完全屋,你喜歡這對夫婦新家的設計嗎?歡迎評論區留言,感謝閱讀,下期見!

相關推薦
請使用下列任何一種瀏覽器瀏覽以達至最佳的用戶體驗:Google Chrome、Mozilla Firefox、Microsoft Edge 或 Safari。為避免使用網頁時發生問題,請確保你的網頁瀏覽器已更新至最新版本。
Scroll to Top