杭州一家三口曬出60㎡小家:進門就是洗手檯,次臥硬是切出客廳!

來源: 更新:

很多小戶型的裝修,真的是太有想象力了,這不,最近杭州一家三口(@小小的家)就曬出了自己的小房子,真的是又有特點又舒適。

這個60㎡的小家並沒有留出玄關的位置,反而在一進門的地方做洗手檯,方便洗漱,並實現乾溼分離;再往裏走,原先的主臥室變成了次臥,並強行切出一間小小的客廳,你別說,還挺實用。

話不多說,今兒就一起來看看這個小家有哪些可圈可點的地方,各位也一起來評價一下~

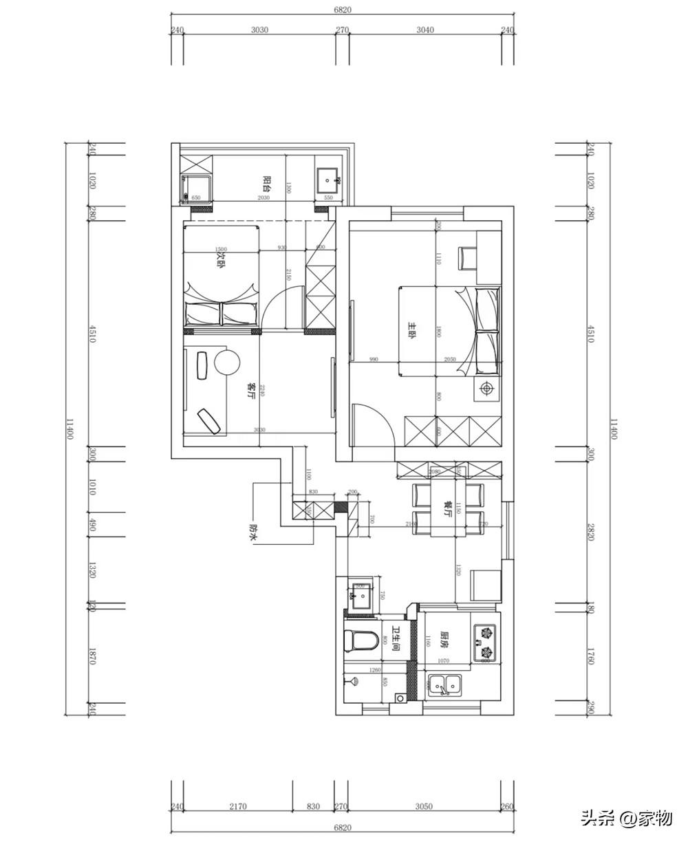
【60㎡的“折角”戶型】

先來說說這個小家的戶型。

  • 全屋整體戶型其實並不算太好,轉角特別多,而且大多地方很窄,像是缺了一角的長方形,十分考驗空間利用能力。
  • 若分成三個空間的話,進門處便是家中的第一個空間,容納下餐廳、廚房和衛生間,正如我上面所講,沒有玄關,而是將轉角空間留給洗手檯,用起來倒是方便。
  • 再往裏走有兩個比較大的臥室,以前設定的次臥室現在變成主臥,空間很大;而原本的次臥室一切爲二,裏面留給孩子,外面做一個小小客廳,好看又好住。

【入戶玄關放洗手檯,不做定製鞋櫃】

入戶玄關有一個小轉角,本身可以做定製櫃收納鞋襪,但一方面是爲了釋放衛生間內的空間,另一方面則是爲了讓一進門的地方不會顯得太憋屈,乾脆就將 洗手檯外移,放在了一進門的位置。

說起來,回家後洗洗手也挺方便。

與此同時,這洗手檯與裏面的衛生間形成乾溼分離,早晨家裏人洗漱和如廁可以互不打擾。

小鞋櫃則放在了門的另一邊,也算是時刻提醒自己不要買太多鞋,並堅持斷舍離的習慣,否則真的會顯亂。

【3㎡廚房,和更小的衛生間】

廚房差不多有3㎡左右,搭配一個放廚電的收納架,變成了U形格局,各種廚電廚具嵌入櫃子裏,檯面轉角處也留出了一個小小的切菜備菜空間,雖然很緊湊,但一間廚房該有的功能它倒是也都有。

之所以要將洗手檯外移,主要也是因爲衛生間內實在太小,想做浴室的話只好如此,說起來也算是半個“三分離”式格局了,洗漱如廁沐浴互不打擾,一家三口生活的話,用起來真的非常舒適。

【餐桌塞進餐邊櫃,背面還有窗】

不得不說,家裏雖然是個只有60㎡的小戶型,但採光真的是非常不錯,不僅廚房衛生間都帶窗,算是全明戶型,餐桌的位置甚至還有一扇外窗,再加上樓層較低,窗外的綠蔭也爲小家內增添了幾分生機與活力。

但話又說回來,畢竟家裏空間較小,想要放上一張哪怕是一米六的餐桌也很勉強,只好利用餐邊櫃內收的設計,在平時將桌面塞入餐邊櫃底部進行收納,日常一家三口吃飯空間足夠,家裏來人做客抽出來也能坐下更多的人。

【主臥變次臥,一切兩半做客廳】

家裏的主臥室帶陽臺,原本是面積最大的一個房間,但現在卻變成了次臥。

原因無他,就是爲了切出一間小小的客廳,哪怕只擺上一張雙人位沙發,也能有個一家三口共聚看電視觀影的地方,讓小家功能變得完整。

次臥室留給孩子當兒童房,雖然小了一些,但還是可以擺上一張雙人牀,從小學用到大學都沒問題。

陽臺一側做洗衣櫃嵌入洗衣機和烘乾機,另一側則放書桌當學習桌,小小的兒童房也算是功能齊全。

牀頭和客廳中間的隔斷牆上,掏出了一個方形的內窗,一方面,它可以避免影響光線和空間通透感,另一方面,也算是增加了額外的採光和通風性,哦對還有,讓次臥室顯得多了幾分田園氣息。

【次臥變主臥,又大又寬敞】

最後就是家裏的主臥室啦,一張1米8的超大雙人牀放在中間位置,兩個人躺也不覺得擠,靠窗的位置放書桌,旁邊用半身矮架代替牀頭櫃,既能收納又能放閱讀燈,一物兩用更加節省空間。

至於衣櫃,按照屋主的喜好選擇了實木的成品櫃子,雖說不做定製櫃會浪費一部分頭頂的縱向空間,但總歸也是爲了臥室內的整體氛圍感考慮,無關對錯,只是喜好抉擇問題。

【文末結語】

總的來說,杭州這一家三口的60㎡小家雖然面積很小,但各種裝修佈置都有條有理,無論是無玄關,放洗手池的設計,還是在次臥室切出客廳,都考慮到了一家人的生活習慣,我個人還是挺喜歡的,不知道各位覺得如何呢?

(圖片來源於網絡,如有侵權立即刪除)

相關推薦
請使用下列任何一種瀏覽器瀏覽以達至最佳的用戶體驗:Google Chrome、Mozilla Firefox、Microsoft Edge 或 Safari。為避免使用網頁時發生問題,請確保你的網頁瀏覽器已更新至最新版本。
Scroll to Top