香港發現一位60歲阿姨的家,那叫一個高級,拍照給大家看,超羨慕

來源: 更新:

現在好多人裝修總愛追“網紅款”,要麼裝成清一色的北歐白,要麼堆一堆沒用的擺件,結果住進去才發現——“好看是好看,就是用着硌得慌”。但香港這位王阿姨的62㎡小家,卻把“裝房子”改成了“裝生活”,每一處都像給日子裹了層溫溫的糖,看了讓人直拍大腿:“這纔是會住的人啊!”

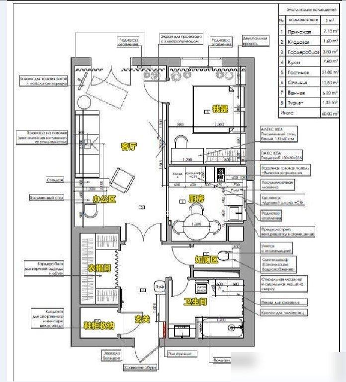
比如玄關,沒跟風買那種“超薄鞋櫃”擠在門口,反而隔出個獨立空間放鞋——你想啊,阿姨愛乾淨,鞋堆在外面沾灰不說,開門就見一堆鞋,再好看的裝修也打折扣。走廊裏擺個白櫃子放雜物,牆上貼淺綠壁紙掛藝術照,不是爲了“顯高級”,是阿姨說“每天出門前看一眼自己年輕的照片,心情能亮半天”。這種“把回憶裝進去”的設計,比那些冷冰冰的網紅牆有用多了吧?

再看廚房,淺色系 cabinets(櫥櫃)配點深色點綴,地板特意和走廊區分開——不是爲了玩“色彩美學”,是阿姨做飯時喜歡“眼前亮堂”,深色點綴是怕淺色系太單調,用久了膩。更聰明的是“廚房變餐廳”,反正空間夠,擺個小餐桌就能喫飯,不用額外佔客廳位置——你說是不是?好多家庭爲了“獨立餐廳”硬擠空間,結果餐桌一年用不了幾回,反而廚房的操作檯不夠用,阿姨這招“一屋兩用”,纔是真的懂過日子。

客廳更絕,沒買大電視,裝了個投影儀——晚上關了燈,投在牆上看老電影,像把電影院搬回了家。

沙發底下鋪塊花紋地毯,不是爲了“顯大氣”,是阿姨怕地板滑,摔着了麻煩。你想想,現在好多子女給老人裝修,光顧着買貴傢俱,卻忘了“防滑”這種最實在的需求,阿姨家這地毯,比那些幾千塊的按摩椅管用多了吧?

辦公區用書架隔開客廳,不是砌牆——砌牆會擠得慌,書架既能擋視線,又能放書放盆栽,阿姨平時在這兒看看報紙寫寫字,客廳的動靜傳不過來,獨處的空間剛好。

書桌上擺的盆栽、牆上掛的面具,不是爲了“裝文藝”,是阿姨說“看着這些活物,家裏不悶”。你有沒有發現?真正舒服的家,從來不是“空無一物”,而是“每樣東西都有存在的理由”。

臥室雖小,但梳妝檯的鏡子帶圈燈——阿姨晚上愛塗個護膚品,燈光亮一點不傷眼睛;衣櫃旁邊擺盆綠植,不是爲了“淨化空氣”那麼官方,是阿姨說“早上起來看一眼綠,一天都有精神”。衛生間更貼心,乾溼分離不說,洗衣機烘乾機嵌在牆裏,不佔地方;浴池旁邊裝個置物架,洗髮水沐浴露伸手就夠着;馬桶上還裝了空氣淨化裝置——你說,是不是隻有真正住這兒的人,纔會想到“泡澡時不用爬起來拿東西”“上完廁所沒有異味”這種細節?

其實好多人羨慕阿姨的家,不是羨慕62㎡的大小,是羨慕“每一處都貼着自己的習慣”。比如烤箱是用來做蛋撻的,投影儀是用來追老劇的,浴池是用來泡掉一天疲憊的,連玄關的藝術照,都是阿姨年輕時旅行的照片——這些不是“裝修”,是“把日子拆成碎片,再一塊一塊裝回家”。

你說,裝修到底是裝給別人看的,還是裝給自己用的?

是不是越貼近生活習慣的設計,越能住得久?

有沒有發現,那些“網紅款”裝修看久了會膩,但像阿姨這樣“帶着生活溫度”的家,越住越舒服?

其實不管房子多大,能把“自己的習慣”裝進去,就是最高級的裝修。就像阿姨說的:“房子是用來住的,不是用來拍照片的。”你家有沒有那種“看着普通,但用着超順”的設計?

評論區聊聊唄~

相關推薦
請使用下列任何一種瀏覽器瀏覽以達至最佳的用戶體驗:Google Chrome、Mozilla Firefox、Microsoft Edge 或 Safari。為避免使用網頁時發生問題,請確保你的網頁瀏覽器已更新至最新版本。
Scroll to Top