湖北女主曬出60㎡“窮裝”小家,不奢華卻乾淨又治癒,令人羨慕

來源: 更新:

巴掌大的房子能裝下多少生活智慧?

看完湖北這位屋主的60㎡小家,我算是開了眼。

這哪是裝修,分明是給空間施了魔法。

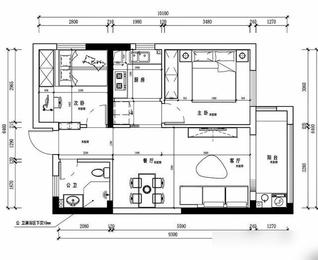
木紋磚通鋪到陽臺,地面像鋪了條時光隧道,眼睛望過去就覺得房子變長了。

走廊塞進對開門冰箱這招夠絕,平常堆雜物的死角轉身成了糧草大本營。

PVC摺疊門更是個妙筆,炒菜時“唰啦”一拉,油煙休想溜進客廳搗亂。

小戶型最怕的就是櫃子喫人——櫃子大了壓空間,櫃子小了不夠裝。

人家倒好,直接讓櫃子“長”進牆裏。

玄關鞋櫃和次臥共用一堵牆,薄得跟書本似的洞洞板掛滿外套鑰匙,牆上還開出展示格放小擺件。

次臥更是把空間榨出油水,牀櫃書桌嚴絲合縫拼成整體,活像變形金剛合體。

這才叫真正的量身定製,比那些花幾萬塊買成品傢俱的聰明多了。

廚房才3.5㎡愣是做出U型檯面,轉角位置塞進洗碗機,洗切炒動線短得轉個身就夠。

最戳心的是那面可旋轉的餐廳吊燈,燈臂跟着餐桌走,照得每盤菜都像加了濾鏡。

白牆配法式石膏線這種基礎操作,人家用菱花白刷出柔光效果,比冷白色貴氣又不顯髒。

說到底“窮裝”真不是摳搜,是把鋼用在刀刃上。

那些拆牆改格局的豪裝,未必比得上主臥鬥櫃兼梳妝檯的巧思。

現在裝修總愛鼓吹“高級感”,巖板背景牆、無主燈設計輪番上陣。

可普通人過日子要什麼虛空高級?

要的是洗完澡有地方掛溼毛巾,孩子玩具能就近歸位,換季被子有地兒安身。

看這家衛生間三分離還擠出浴缸位,洗衣區藏得看不見卻伸手就能夠着,纔是實打實的生活段位。

軟裝花兩萬就撐起全場,原木餐邊櫃配亞克力腿餐桌,遠看像懸在半空的藝術品。

說到底裝修和過日子一個理——不是比誰碗裏肉多,是看誰把白菜做出肉味。

60㎡照樣能玩出花活:走廊變儲藏室,洞洞板當管家,摺疊門做結界。

這些點子不用請設計師,照搬回家準沒錯。

畢竟會生活的人,給他個火柴盒也能搭出安樂窩。

相關推薦
請使用下列任何一種瀏覽器瀏覽以達至最佳的用戶體驗:Google Chrome、Mozilla Firefox、Microsoft Edge 或 Safari。為避免使用網頁時發生問題,請確保你的網頁瀏覽器已更新至最新版本。
Scroll to Top