上海姑娘的40㎡小家火了,花7W爆改老破小,因黑白裝修太好看走紅

來源: 更新:

有很多老破小戶型,真的很有潛力!這不,最近我就看到了一位上海姑娘(@方几伢)的40㎡老破小,別看面積不大,但翻修過後,卻真的很好看!

最關鍵的是,這間40㎡的老破小,整個翻修下來也才花了7W塊,而且裝修成了頗顯高級精緻的黑白灰簡約風格。

對於獨居生活的她來說,有一個這樣的小家真的十分不錯,我個人還是很喜歡的,話不多說,分享給各位小夥伴看看~

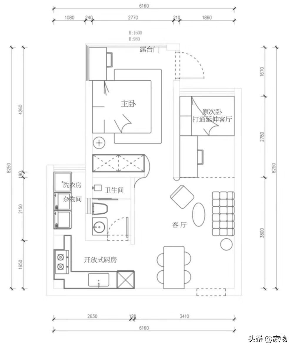
【40㎡老破小翻修後戶型圖】

這間老破小的戶型其實方方正正,還算不錯。

  • 進入家中後,正對面是客廳,而左手邊則是餐桌,雖說無窗,但通過巧妙的空間佈置將廚房、次臥和主臥的光線引入了客廳中。
  • 原先的次臥室特別小,放上牀鋪之後就幾乎沒有別的空間了,但她考慮到自己一個人住,就乾脆把次臥室改成了一間小小的書房。
  • 廚房由原來的封閉式改成開放式,衛生間開在廚房一側,雖然面積都很小,但重新裝修後卻功能齊全,後面我會一一說到。

【客廳翻修前後】

客廳翻修之前,就是老舊的裝修和傢俱,因爲牆面老舊,傢俱顏色較深,整個客廳空間顯得有些昏暗老舊,而且也沒有什麼軟裝搭配,看起來過於普通,但翻修後,卻換了一副光景。

裝修過後的客廳,將牆面重刷,也換掉了之前老舊的傢俱,轉而用一張白色的長沙發和黑色的小茶几相互搭配,這一間小小的客廳,就將黑白灰三種較爲高級的色彩運用得當,顯得格外簡潔明快。

【次臥室改書房】

原先的次臥室,其實就只夠擺上一張單人牀和一張書桌的,裏面真的是逼仄又擁擠,難以充分利用,但優點是採光非常不錯。

這次爆改裝修後,直接取消了次臥室的功能,轉而變成了一間既能工作,又可以爲客廳增加採光的書房。

改成書房以後,次臥室的佈置看起來也要比之前顯得高級許多,一張單人椅,旁邊幾組矮櫃,就可以放下她喜歡的黑膠唱片機、雜誌,變成一個舒適的休閒區。

同時,以前的舊窗簾也換成了百葉窗,既節省空間,看起來又好看,很適合這類的小戶型次臥。

【廚房改成開放式】

進門處左手邊是家裏的廚房,如今,這間廚房也改成了開放式格局,拆掉了原先的玻璃推拉門。

廚房外面放一組矮櫃當餐邊櫃,摺疊餐桌可以隨時放下或收起,不會佔用太多空間。

對比一下原先的廚房,發現真的是要好看太多太多。

廚房內也呼應家中裝修風格,大量採用黑白灰三種色調,比起之前老舊的藍色櫥櫃黑色檯面來說,真的不知道要好看了多少倍!我個人是真的喜歡這新裝修的開放式廚房。

與此同時,雖然櫥櫃不算大,但也做了底櫃收納,側櫃放鍋,爲了不讓頭頂空間顯得壓抑,乾脆就沒做吊櫃,而轉而用隔板架和頂吸式油煙機的上半部分進行收納。

放上些調味品,用起來也非常方便。

【主臥室陽臺打開】

之前老破小狀態的主臥室裏,陽臺其實是封起來的,雖說讓室內空間變得豐富了,但卻少了陽臺本身的休閒區,通風透氣性自然也要比不封陽臺的時候差上一些。

改造過後的主臥室,牀鋪所在的位置沒有變化,只是由原來其貌不揚的拼接木牀,換成了V字形黑色牀頭的高背牀,睡前坐在這裏看看書、玩會兒手機,靠着都很舒服。

陽臺現在被打開,做了兩扇黑色框架的玻璃門,從臥室可以直接去到屋外的露臺,此外,黑色玻璃門的設計也很有那種復古的感覺。

哦對了,牀邊沒有放牀頭櫃,而是擺着一張梳妝檯,代替了牀頭櫃的置物功能,不會浪費更多空間。

閒來無事,直接從臥室去往陽臺,坐在搖椅上吹吹風曬曬太陽,真的要比之前做封閉陽臺的感覺好很多,別的不說,最起碼可用空間也要比之前大上不少呢。

【衛生間簡單翻修】

最後,家裏的衛生間也經過了簡單的翻修,雖說面積很小,但居然還有一扇窗戶,讓它變成了一間通風采光較強的明衛,對這樣一個40㎡的小家來說,已經算是非常舒服的了。

總之,這位上海姑娘的40㎡小家雖然面積不大,但花費7W塊爆改後,卻變成了現在這樣又好看又實用的黑白灰裝修風格,也難怪曬出來後廣受人們喜歡~

不知道各位小夥伴覺得她的小家怎麼樣呢?

(圖片來源於網絡,如有侵權立即刪除)

相關推薦
請使用下列任何一種瀏覽器瀏覽以達至最佳的用戶體驗:Google Chrome、Mozilla Firefox、Microsoft Edge 或 Safari。為避免使用網頁時發生問題,請確保你的網頁瀏覽器已更新至最新版本。
Scroll to Top