廣州姑娘的35㎡蝸居火了:利用陽臺切出6㎡次臥,將一居變兩室!

來源: 更新:

在家居裝修的過程中,總是會有一些“奇思妙想”,將原本雞肋的戶型格局變化出更多的花樣,讓小家兼具美觀和實用,今天要說的這個蝸居便是如此。

一位廣州姑娘(@等呀等晴天)買下了一間35㎡的狹小蝸居,原本,蝸居內只有一間臥室,但經過切分隔斷後,卻在原本陽臺位置隔出了一間6㎡的小次臥。

將一室戶型切分出兩室後,家裏的生活空間不僅變得更靈活了,日後有了孩子,也能擁有一間屬於自己的小臥室,最關鍵的是,這次裝修並未影響到室內的正常採光通風,個人感覺還是不錯噠,一起來看看~

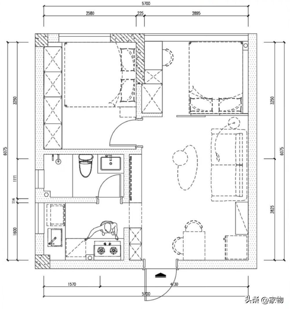
35㎡蝸居切出兩室後的戶型

  • 原本進入家中後,是一個長條形的客餐廳,但現在,靠近陽臺窗戶的一側被隔開,切出6㎡的次臥室。
  • 客廳沙發和餐廳都保留了下來,但尺寸均被壓縮,沙發對面的電視牆移動到了廚房門旁,實話說真的比較小。
  • 廚房和衛生間位置沒變,只不過要從廚房進入衛浴;主臥室格局也依舊,做了櫃子後收納能力更強。

剛一進門就是玄關和廚房

剛一進門,左手邊就是一組三段式鞋櫃,它承擔了家裏過渡區的功能,深度有35釐米的樣子,上櫃可以收納各種雜物,中間櫃格放置進出家門時的隨身物品,下面鞋櫃還留出一個空格換鞋區,常穿的鞋子可以直接推進去,不顯亂。

廚房是L形格局,雖然面積很小,但功能齊全——

竈臺和水槽中間做了高低臺,洗碗炒菜都不累腰,洗衣機也嵌入廚房內,與水槽共用排水,其上放放小廚電同樣剛好合適。

客廳餐廳一體化

客廳和餐廳同處一個空間,雖說減少了次臥室的6㎡面積,但依舊保留了餐廳,在進門處放一張小餐桌,最多可以容納三人同時用餐,餐邊櫃和冰箱放在餐桌背面,也恰好利用起這小角落進行佈置和收納。

也難怪這位廣州姑娘的35㎡蝸居能火,她對小家的空間佈置真的太到位了,別的不說,面積大概13.8㎡的客廳開間有3.27米,剛好能利用電視牆再做個櫃子,既不影響進出動線,又能留出放小茶几的空間。

衛生間在電視牆後面

比起很多超大尺寸的裝飾電視牆來說,這位姑娘的電視牆幾乎只有一個50吋電視的寬度,爲了利用縱向空間,電視櫃都做了兩層,提升了客廳內的收納空間。

而在這面電視牆後面,其實就是家裏的衛生間啦。

衛生間門開在廚房一側,中間是馬桶,靠窗位置做浴室,正對衛生間門的地方則做懸空浴室櫃,搭配鏡櫃做收納,可以收納下衛生間裏所有的清潔和洗漱用品,收納能力太強。

切分出的次臥室和原本的主臥

家裏現在有兩間臥室,其中,次臥室是由原本陽臺切分而出,加上一道雙層玻璃隔斷後,陽臺變成一張放下雙人牀,和書桌、櫃子的舒適臥室,雙層玻璃隔斷也能兼顧隔音保溫和採光。

而主臥室呢,面積稍微大一點,有大概7.8㎡左右,一面牆做衣櫃進行收納,另一邊剛好避開門框,放下一張1.8米的箱體牀,睡眠尺寸更加寬敞,一個人住別提多舒適了。

文末總結

總而言之,這位廣州姑娘的35㎡蝸居在我看來真的是個又好看、又實用的“暖居”,獨居的話真的很舒服,後面組成家庭後,一家三口住也沒問題。

尤其能在陽臺這個6㎡小空間,切出一間次臥室的想法,真的是服了,我個人還是挺喜歡的~

不知道大家覺得這間蝸居怎麼樣?

(圖片來源於網絡,如有侵權立即刪除)

相關推薦
請使用下列任何一種瀏覽器瀏覽以達至最佳的用戶體驗:Google Chrome、Mozilla Firefox、Microsoft Edge 或 Safari。為避免使用網頁時發生問題,請確保你的網頁瀏覽器已更新至最新版本。
Scroll to Top