日本夫妻買下雙層蝸居,南北西三面有窗,逼仄小家還保留水泥毛坯

來源: 更新:

不得不說,有很多小家的裝修真的又有特點又舒適,今天我們要說的這對日本夫妻的家,便是如此。

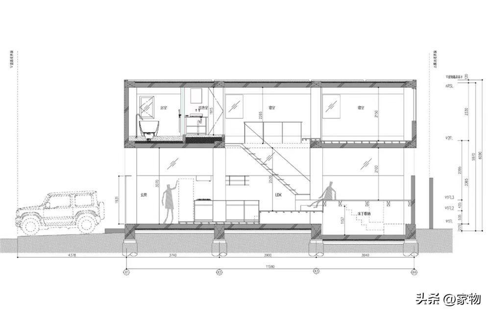
這對日本夫妻的家面積不大,窄窄的小屋也只有8根主要的承重柱組成,分爲上下兩層,上層是衛生間和臥室,下層是廚房和臥室。

雖然面積不算大,但整個家卻格外明快,家裏的南、北、西三面都有窗戶,進入家中就能感到格外通透。

家裏的戶型

先說說這個小家的戶型圖,它和很多日本的房屋一樣都臨街,從車庫進來後就是一間與廚房相融的客廳,再往裏走則是間客廳,窗戶雖高,卻能將光線帶入家中。

二樓的空間相對私密些,是夫妻二人的臥室和衛生間,分置兩邊,收納空間也足夠。

一樓入門處的空間

一進入家中,這個家給人的感覺就有些不一樣,玄關依舊做了日式常見的落塵區,旁邊就是開放式廚房。

家裏雖然都是水泥毛坯的風格,但接近天花板的位置周圍一圈都做了玻璃,主要朝向南北西三面。

廚房相對簡單,並沒有做吊櫃,只是用櫥櫃+層架的方式,收納各種各樣的碗碟餐具,並方便烹飪,雖是開放式廚房,但卻因爲收納整理別具一格而顯得格外整潔。

層階向上的客廳

其實家裏有點像是錯層的感覺,從玄關到廚房再到客廳,基本上分爲了三到四個階層,旁邊的窗戶給室內帶來了足夠的採光,但因爲夠高不會影響隱私。

客廳的部分,既是墊高,也有下沉的區域,這裏沒有沙發茶几或電視櫃,而是用單人椅和邊桌相互組合,變成一個簡單卻明快的休閒空間。

步入二層的樓梯

家裏的樓梯選擇了半開放式的“懸浮樓梯”,雖然視覺上看着比較簡潔靈動,但實話說,我個人感覺是真的有點危險,即便靠牆的一側有扶手,另一邊也挺沒有安全感的。

二樓的衛生間

二樓的一邊是衛生間,用玻璃門簡單分隔浴室和如廁的空間,洗手檯放在外面,平時看起來就像是一個開放區域,不會覺得逼仄。

日常洗澡沐浴的時候,則能避免將水漬弄得到處都是,雖然家裏裝修的樣式還是水泥毛坯的風格,但防水卻絲毫沒有落下,洗漱沐浴不用擔心滲水的問題。

臥室收納同樣不差

別看家裏窄,但臥室的收納絲毫不差,進入臥室中,是一個開放式的衣櫃,收納夫妻二人的衣服綽綽有餘,木色調的地板和裝飾面板,也爲這個家增添了一些活力。

二層的窗戶比一層要小一些,起碼臥室是這樣的,可能採光會略微弱一些,但這種昏沉的環境卻能讓人更有慵懶和睡眠的感覺。

總結一下

總之,我個人還是挺喜歡這對日本夫妻的小家的,雖然面積小,但佈置卻太舒服了,尤其是南北西三個方向都有窗戶,保證了水泥毛坯風格的明亮和舒適,不知道大家覺得如何呢?

(圖片來源於網絡,如有侵權立即刪除)

相關推薦
請使用下列任何一種瀏覽器瀏覽以達至最佳的用戶體驗:Google Chrome、Mozilla Firefox、Microsoft Edge 或 Safari。為避免使用網頁時發生問題,請確保你的網頁瀏覽器已更新至最新版本。
Scroll to Top