沈騰在北京370㎡的家:三角戶型大落地窗,雖有點亂卻很有煙火氣

來源: 更新:

沈騰大家都知道,作爲知名演員的他,這幾年也一直活躍在熒幕上,但拋開作品不談,大家知道他日常生活是什麼樣子的嗎?

最近,我就看到了他位於北京二環的豪宅,370㎡的屋子,算下來要9000多W,真的是讓人頗感羨慕和嚮往了!

話不多說,一起來看看他的家是什麼樣子的吧~

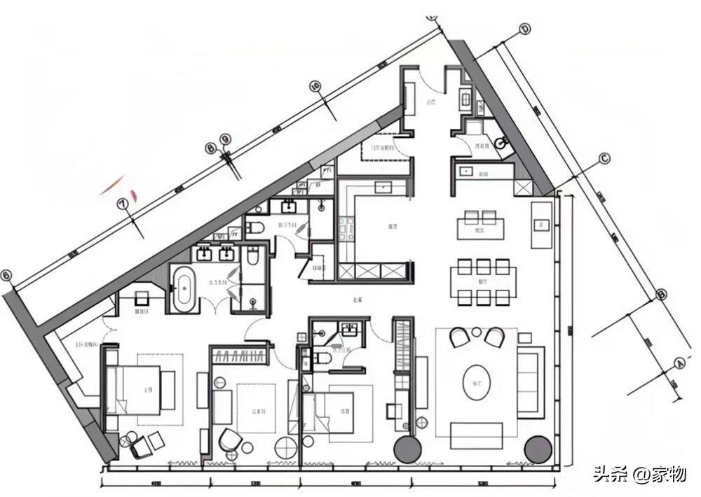
家中的三角戶型

房間初始便是三角戶型,有多間臥室、浴室,也有完備的開放式廚房和超大的觀景客廳,再加上樓層較高,從這裏就可以俯瞰大片城區,實在是感覺有些夢幻了。

客廳的樣板間和入住後的樣子

據說這個小區是之前酒店改成的,現在也有種酒店公寓的感覺,屋內的樣板間看起來就很高級,從高高的天花板,到寬敞的客廳,都讓人感覺出了“闊氣”二字。

當然,樣板間自然是要顯得乾淨整潔許多的,但也因此少了一些生活氣息,沈騰真正的家中是什麼樣子的?其實去年就有很多關於它的報道。

客廳其實是比較亂的,但這種亂又是帶有生活氣息的亂,而不是一味得堆砌,包括孩子的玩具、電視櫃上的小水杯,都能看出很有愛的感覺,當然了,這些“Minotti Calder Bronze”的傢俱,可是真不便宜呢……

孩子的一系列玩具,就與這些貴貴的傢俱混在一起,落地窗外,景色雖然算不上多麼好,但視野確實絕佳,層高的優勢和大落地窗的優點結合完美,真讓人羨慕。

臥室同樣有廣闊視野

臥室的裝修同樣延續了這種帶有意式奢風的裝修風格,小區內相同的樣板間,有這種弧形的臥室大牀,也是給居住者提供了一個較大的觀景空間,舒適性自不必多說。

寬敞的大浴室

一般來說,家裏浴室是明衛就不錯了,但像這樣的豪宅,浴室內甚至還有落地窗和大浴缸,每天在這裏沐浴洗漱,想必都是一件很享受的事兒吧,沈騰的豪宅果然名不虛傳!

文末總結

總而言之呢,這間370㎡,要價9000W的豪宅無論是從地理位置、裝修、傢俱還是整體風格來說,都是可圈可點,它也確實配得上功成名就的沈騰!不知道大家怎麼看呢?

(圖片來源於網絡,如有侵權立即刪除)

相關推薦
請使用下列任何一種瀏覽器瀏覽以達至最佳的用戶體驗:Google Chrome、Mozilla Firefox、Microsoft Edge 或 Safari。為避免使用網頁時發生問題,請確保你的網頁瀏覽器已更新至最新版本。
Scroll to Top